



















































































просп. Дзержинского, 123, г. Минск, Минская область
Обновлено сегодня 11:01
UP 3 часа назад
Жизнь, о которой вы мечтали, начинается здесь!
Представьте: вы первый, кто поворачивает ключ в замке этого безупречного пентхауса. В воздухе еще витает аромат свежего ремонта, а идеальные полы из бельгийского кварц-винила не знали ничьих следов, кроме взгляда дизайнера. Здесь ещё пахнет новизной.
Пр-т Дзержинского, 123. Пентхаус, который вдохновляет.
Почему это не просто квартира, а новый уровень комфорта:
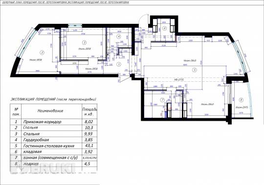
Вид и пространство: 17-й этаж, панорамные окна и 3-метровые потолки, наполняющие дом светом и воздухом. В тамбуре всего 2 квартиры — достаточно места для хранения и абсолютное спокойствие.
Ремонт с душой (для себя!): Дизайнерский проект в стиле неоклассика, где роскошь встречается с уютом. Мы вложили душу в каждую деталь. Вам останутся только приятные хлопоты — выбрать мебель и технику на свой вкус. Никаких компромиссов: только качественные материалы и продуманные планировки.
Фишки, которые влюбляют:
* Гардеробная вашей мечты: Отдельная комната для одежды с подсветкой полок. Теперь сборы на работу — это модный показ.
* Отдельная постирочная: С готовыми выводами под стиральную и сушильную машины. Забудьте о ванной, увешанной бельем.
* Магия света: Продуманные сценарии освещения для уютных вечеров и ярких встреч с друзьями.
* Кухня-мечта: Крашеный МДФ, плавная фурнитура Blum и столешница из благородного натурального камня.
* Ванная как из журнала: Испанский керамогранит и стильная душевая из стеклоблоков.
Идеальная локация:
Живите в эпицентре комфорта: метро прямо у дома, быстрый выезд на МКАД. Вся инфраструктура для счастливой жизни — в шаговой доступности:
* Для семьи: Детские сады, средние школы, гимназии (№174, 192), Детская поликлиника №6, Городская поликлиника №39.
* Для досуга: Бассейн «Дружба», спортивный и тренажерный залы, парикмахерская, салон красоты.
* Для шопинга и вкуса: Гипермаркеты «Простор», «ОМА», «Евроопт», ресторан «Хинкальня», кафе «Груша», булочная «Булочки».
* Для отдыха на природе: В 10-15 минутах «Парк имени Михаила Павлова» и природный заповедник «Дубрава» – идеальные места для прогулок.
Это идеальный вариант и для жизни, и для сохранения капитала. Станьте первым, кто назовет это место своим домом!
Звоните! Приходите влюбляться!
Смотрите еще больше в нашем Telegram канале @kvadratnyjmetr
УП «Квадратный метр»
УНП: 190003285
Лицензия 02240/29_от 17.02.2005, Министерство юстиции РБ
Договор 132/24 от 03.03.2026
Б/у
Минск
Б/у
Минск
Б/у
Минск
Б/у
Минск
Б/у
Минск
Б/у
Минск
Б/у
Минск
Б/у
Минск
Б/у
Минск
Б/у
Минск
Б/у
Минск
Б/у
Минск
Б/у
Минск
Использование сайта Beruki.by означает согласие с Пользовательским соглашением и Политикой конфиденциальности. Режим работы: 10.00 - 18.00, Пн-Пт.

Сайт beruki.by собирает неперсонифицированные данные о пользователях посредством cookies-файлов, чтобы оказывать услуги с высокой степенью качества. Продолжая пользоваться сайтом, Вы соглашаетесь с Политикой конфиденциальности и Политикой использования cookies.

